Edificación
	7 VIVIENDAS Y LOCAL EN CASCO HISTÓRICO DE ORDUÑA
	
	La parcela donde se quería levantar un edificio para viviendas de precio tasado y local administrativo en planta baja, ubicada en pleno Casco Histórico de la Ciudad, se encontraba sin construir desde hacía años. En realidad eran dos solares góticos de frente estrecho y gran profundidad, ubicados en una de las manzanas extremas de uno de los núcleos de la villa medieval. Se trataba además de uno de los solares más particulares de la villa, por encontrarse entre el núcleo fundacional y el primer ensanche del siglo XIII. 
Los solares son colindantes con el Ayuntamiento de Orduña, junto a la Torre del Concejo, una de los restos principales de la muralla defensiva de la ciudad, de la que se separan mediante un caño, en este caso elevado con respecto al nivel de la calle.
Dado que nos encontramos en el Casco Histórico, y por tanto en zona de Presunción Arqueológica, se realizaron sondeos en los solares, que descubrieron en la parte trasera del solar restos de la muralla medieval que encerraba el segundo recinto de la villa. Esos restos se mantienen aún en pie.
El punto de partida del proyecto fue el lugar donde se iba a edificar. El Ayuntamiento de la Ciudad con la Torre del Concejo a la derecha, el duro muro de piedra del caño elevado a la izquierda, los restos de la muralla al fondo, y los restos de antiguas edificaciones repartidos por la parcela. Además existía un pequeño programa a cumplir, con oficinas municipales en la planta baja y viviendas en plantas superiores, sin determinar el número concreto. Y además había que plantear un paso peatonal que conectara la calle Zaharra (y por tanto la Plaza de los Fueros) con un nuevo espacio público junto a las murallas.
En primer lugar se decidió por no sólo proteger los restos de murallas encontrados en el solar, sino que quedaran a la vista.
Para poder conseguirlo y así reducir visualmente ese paso peatonal (de 2 metros de ancho, pero que tenía que salvar 27 metros de fondo), se decidió construir en planta baja tal y como se edificaban los solares limítrofes en la época original. La planta baja de oficinas se retrasa hasta la alineación trasera descubierta, posibilitando la recuperación y disfrute de los restos de muralla encontrados. Dado que el paso peatonal planteado tiene que salvar la muralla, se proyecta una rampa ligera  de madera y acero apoyada en ella. Para dar más uso a ese paso que siendo peatonal podría resultar infrautilizado y marginal, se sitúan allí los accesos a las viviendas y al portal.
La construcción en los solares intenta ser un reflejo de las edificaciones del casco, tanto en alzado (una planta baja pétrea, maciza y desordenada sobre la que se apoyan las plantas restantes con huecos dispuestos en ejes verticales) como en sección (marcando con diferentes alturas las distintas plantas: baja, primera –principal-, y segunda).
Y por último, y dado que una altura excesiva podría ocultar la Torre del Concejo colindante, se decide establecer un volumen edificado diferente en los dos solares, dando menor altura (planta baja más dos) al inmueble a construir en el solar número 2.
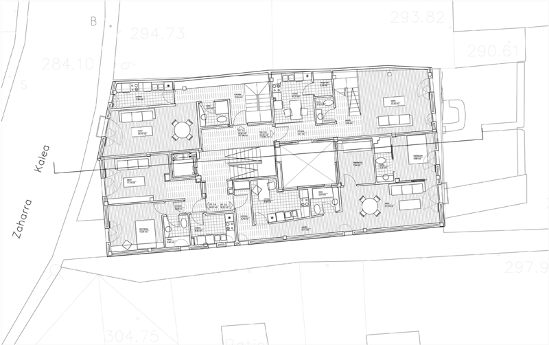
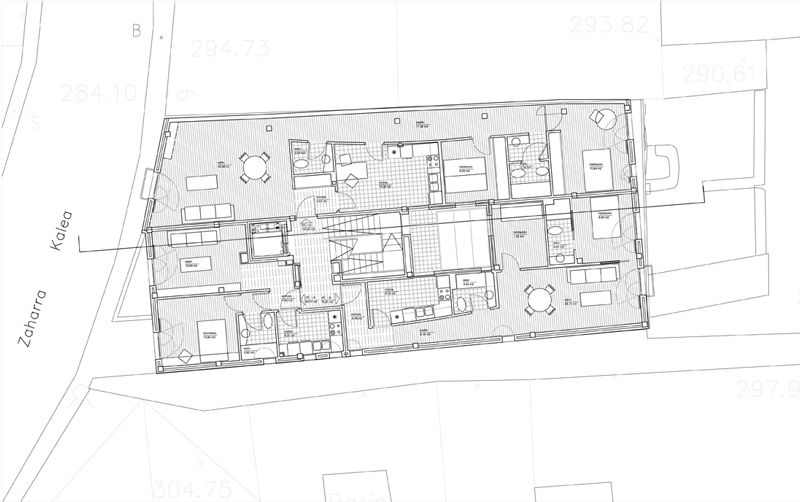
Y con respecto a la distribución interior, ésta viene condicionada por estos puntos impuestos tanto por los solares existentes como por nosotros mismos. Dada la estrechez de los frentes de ambos solares y del enorme fondo que tienen, para poder ventilar el centro de los solares se hace necesario proyectar un patio interior, de 3x4 metros, que se sitúa junto al núcleo de comunicación vertical.
En el solar situado en el número 2, con un frente de fachada mayor, se proyecta un apartamento de una habitación en la fachada principal y una vivienda de tamaño medio con dos habitaciones con ventilación al patio y a la fachada al futuro espacio libre. Este esquema se repite en la planta superior.
En el solar situado en el número 4, en planta baja, dado su estrecho frente de fachada, no se podían ubicar dos piezas que vertieran a la misma. Se opta por lo tanto por plantear una única vivienda de dos dormitorios en planta primera.
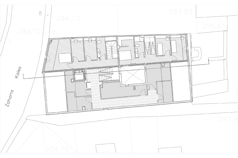
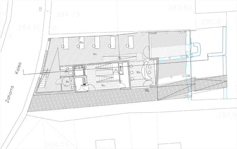
En plantas superiores (y dado que en este solar si que se plantea aprovechamiento de la planta bajocubierta) se edificarán dos viviendas en dúplex, con tres dormitorios cada una.
          
          //
