Se trataba de un edificio del siglo XVII ubicado en pleno Casco Histórico, abandonado, y con algunos elementos en muy mal estado, como la fachada trasera, cuya parte baja era todavía muralla de la villa medieval.
La actuación propone su mantenimiento completo, con la retirada de elementos dañados exclusivamente, y refuerzo estructural del resto.
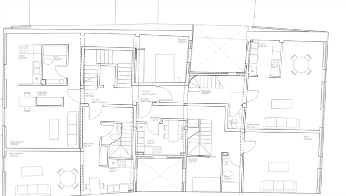
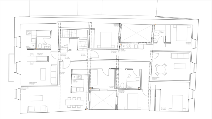
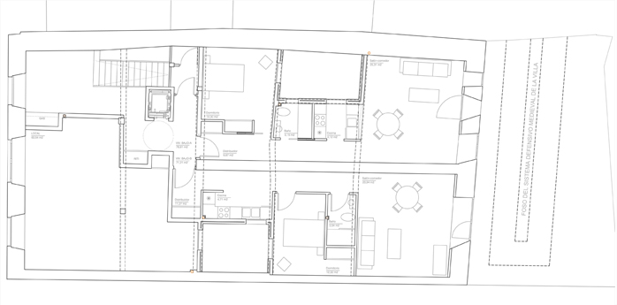
La distribución plantea la ubicación de viviendas de diverso tamaño, teniendo en cuenta la preexistencia, con la mejora de la creación de un nuevo patio.
En cuando a la fachada, se pone en valor el muro de piedra de la planta baja y primera de la fachada principal, distinguiendo de la fachada de entramado de madera y ladrillo de la planta segunda.
En cuanto a la fachada trasera, se pone en valor los restos de la muralla existentes, sin crear nuevos huecos y eliminando los vuelos y añadidos que la desvirtuaban.
En el interior, se recuperan parte de los suelos hidráulicos originales, en las zonas comunes, portal y escalera. En el interior de las viviendas, se limpian muros de piedra, dejándola vista, dejando conciencia del pasado del edificio en todas las viviendas en las que se distribuye el edificio original.
          
           ////
          
