Rehabilitación
	REFORMA INTERIOR VIVIENDA EN BILBAO
	
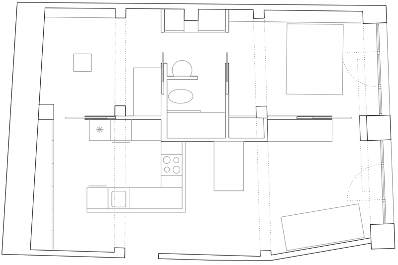
	Antes de su renovación, era una vivienda pequeña en un edificio junto a la ría de Bilbao, con pequeños balcones al exterior, donde se intuían grandes arcos, y varias dependencias completamente interiores, al tratarse de una vivienda particular, con una sola fachada al exterior.
La intervención plantea la eliminación de esas dependencias interiores, buscando la ventilación e iluminación de los espacios a los grandes nuevos ventanales semicirculares que se recuperan en la fachada principal, con vistas a la ría y el mercado de La Ribera.
Se plantea un muro que divide en dos la vivienda, un muro quebrado en planta y alzado, que permite la ubicación de distintos usos. Por un lado, alojará muebles altos de la cocina, por el otro, el espacio de la ducha, y de nuevo, a este lado, el espacio de televisión, buscando una vivienda que necesite de poco mobiliario, teniendo en cuenta su reducido tamaño.
Ese muro, que cierra las estancias con puertas correderas en sus extremos, para poder disfrutar de la vista de los dos arcos, divide la vivienda en zona de día (cocina, comedor y sala de estar) y zona de noche y trabajo (despacho, baño y dormitorio). Esas puertas correderas se colocan también  en el muro que cierra el baño, para que, una vez abiertas, permitan la entrada de luz natural al despacho. Los muros perimetrales se limpian, sacando madera y ladrillo, que se pinta de blanco, por limpieza, claridad y uniformidad. Los muros de ladrillo se destacan con bañadores de pared en el techo.
En el suelo se busca un único material que pueda unificar todo el espacio abierto, recurriendo a un mortero autonivelante de anhidrita, que se pule y acaba con un barniz mate.
          
          
          
