Este edificio no construido en una pedanía de Murcia es casi un ejercicio teórico, un trabajo de estudio sobre vivienda en una parcela en un clima casi extremo como el murciano.
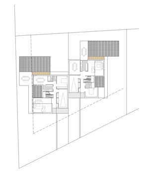
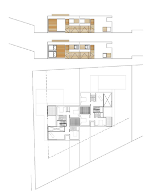
Se trataba de proyectar dos viviendas en dos parcelas de tamaño ajustado. Considerando que los retiros obligatorios en el caso de plantearlas exentas hacían que la vivienda fuera muy estrecha y la parcela poco aprovechable, se decide adosarlas parcialmente. Las viviendas son similares en sus planteamientos pero responden cada una a su ubicación concreta. Salones con doble orientación, a fachada y patio interior para facilitar la ventilación cruzada. Doble altura sobre el salón y el patio, en una zona de lectura en planta primera. Terrazas vinculadas a las habitaciones principales de planta primera.
Y un juego de carpintería corredera perforada en fachada, que, además de ofrecer una imagen cambiante de la vivienda, permitía resguardar al interior de la vivienda de las altas temperaturas del verano de Murcia y facilitaba la circulación del aire.
Esta propuesta finalmente no fue aceptada, y se quedó en ejercicio de proyecto.
