Edificación
	VIVIENDA BIFAMILIAR // ARRANKUDIAGA
	
	Con una forma absolutamente determinada por la restrictiva ordenanza de edificación municipal (cubierta a dos aguas de teja, alero continuo en todas sus fachadas), la vivienda bifamiliar permitida por la ordenanza se implanta en el solar teniendo en cuenta todos los condicionantes: la contaminación acústica de una autopista no muy lejana, a la que se le da la espalda; y una parcela con una suave pendiente inicial, pero con una fuerte pendiente hacia el norte al final.
Se opta por situar la vivienda en el punto extremo donde comienza la pendiente más fuerte, sirviendo de charnela entre el jardín horizontal al sur y la ladera arbolada al norte. De esta manera se consigue que desde la vivienda se pueda disfrutar de las vistas del meandro del río, liberando la máxima superficie horizontal de jardín hacia el sur, para poder disfrutar de la mayor parte posible de espacio libre verde con buena orientación, sin que la propia vivienda le dé sombra.
La vivienda se convierte así en el muro de contención del jardín horizontal y en el punto de transición hacia la ladera de fuerte pendiente. Hacia el sur la vivienda asoma con solo dos plantas, mientras que al norte son tres plantas las que emergen, convirtiendo la planta inferior de garaje y otros usos en semisótano.
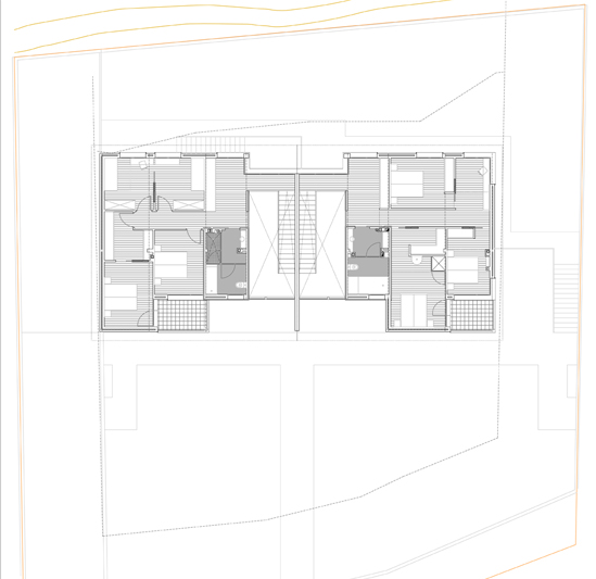
Para orientar la vivienda bifamiliar, por un lado, hacia las vistas, y por otro lado, hacia el jardín, la planta de la vivienda es rectangular, con los lados de mayor dimensión orientados hacia el norte y sur, para ofrecer la máxima superficie en ambas direcciones.
A pesar de ser una vivienda doble, no es totalmente simétrica, sino que cada una responde en su volumetría a los condicionantes de orientación y se ajusta a las necesidades de cada uno de los futuros habitantes. 
Sí parte de un punto central que las divide, un muro central de hormigón visto que sirve de apoyo a la comunicación vertical entre las plantas, con un vestíbulo a doble altura para cada vivienda en la entrada principal peatonal, que servirá además como colchón para separar cada una de las viviendas, y que los espacios vivideros (salón, dormitorios) no estén en contacto.
Las dos viviendas comparten un garaje común y un único acceso, que se sitúa en el límite oeste de la parcela. El garaje se sitúa en la planta semisótano, que tiene orientaciones abiertas hacia todos los vientos excepto al sur, donde sirve de contención del jardín.
Del espacio de guardería de coches para cuatro vehículos sale un pasillo amplio que sirve de distribución para dar acceso a las dos viviendas y a la sala de calderas que se sitúa en el extremo opuesto.
Las viviendas en esa planta semisótano constan de un almacén, un txoko y la escalera que da acceso a la planta baja. Como la planta se retranquea hacia el este, para abrirse hacia el sol de la mañana y las vistas, cada una de las dependencias en cada una de las viviendas tiene una superficie diferente, adaptándose a la forma propuesta.
En planta baja, la escalera que viene del sótano llega al vestíbulo a doble altura, donde se encuentra además el acceso peatonal. De este vestíbulo se accede a la sala – cocina – comedor, y también a los espacios de servicio, el tendedero y el aseo completo de planta baja. En la vivienda B, la situada hacia el este, además, se plantea una vivienda en planta baja.
Del vestíbulo a doble altura surge también una escalera liviana, ejecutada en chapa de acero doblada, que da acceso a la planta primera, donde se sitúan los dormitorios, con un único baño dividido internamente, aunque con la distribución concreta ajustada a las necesidades de cada uno de los futuros moradores.
          
          //
