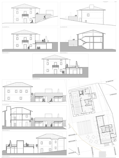
Se trata de un concurso para la ampliación de un edificio para su transformación en casa consistorial, que se ubica en junto a la ribera de un río. La actuación plantea la ubicación de las dependencias de oficinas y atención al público en el edificio existente, creando un nuevo edificio conectado con éste en nivel de planta primera (donde se ubican los despachos de alcaldía, concejalías y secretario municipal), donde se ubicaría el salón de plenos.
Este nuevo edificio, en L perpendicular al preexistente, crea una nueva plaza pública conformada, en la que el acceso al espacio del salón de plenos se dignificará por su propia ceremonia de acceso.
El nuevo edificio no se cierra, aún y todo, al río, continuando la imagen de ribera de río con los pilares inclinados que le sirven de apoyo, a modo de troncos. 
          
           ////
          
