Edificación
	VIVIENDA UNIFAMILIAR // LLODIO
	
	La vivienda se ubica en una parcela resultante de la reparcelación de un sector de suelo urbanizable, de tamaño reducido, y rodeada de otras parcelas edificadas, a una distancia bastante pequeña, una separación a linderos de 3 metros, con lo que las edificaciones van a estar bastante próximas unas de otras.
En primer lugar se tuvo en cuenta que los promotores querían proyectar en la parcela de su propiedad una vivienda relativamente grande, con cocina, salón y cuatro habitaciones dobles.
Sin embargo, el condicionante principal y también el principal motor de la idea del proyecto era la situación, forma y orientación de la parcela. La parcela donde se ubicará la vivienda, en cualquier caso, se puede considerar una privilegiada, puesto que no está rodeada por parcelas en todos sus linderos. En el sur, no hay otra parcela, sino que en la urbanización se planteó un paseo peatonal.
Para evitar enfrentarse con otras viviendas y también para que la mayoría de las habitaciones vertieran al sur (también al paseo, también al parque), se ha proyectado una vivienda en L que se cierra al Noroeste (y se cierra a las parcelas colindantes y se cierra al vial) y se abre al Sudeste.
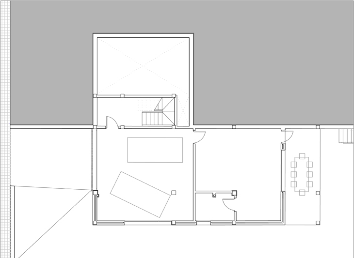
Además para adaptar la edificación al terreno, se ha aprovechado el desnivel existente para dividir la parcela en dos, longitudinalmente, con dos alturas en cada zona. Teniendo en cuenta que la diferencia de cota es de casi 2,60 m. entre el punto más bajo y el más alto de la parcela,  se utiliza la desnivel del vial que da servicio a la parcela para crear dos plataformas a distintas alturas, dos plataformas con tratamiento diferenciado. La plataforma inferior, que es la situada más al norte, es la de tratamiento duro, la que queda a nivel con el garaje y la bodega, y también con el punto más bajo del vial en la parcela. La plataforma superior es la ajardinada, la de acceso peatonal, la que se relacionará con el salón. Entre ambas plataformas, un muro de hormigón tratado que es el que divide la parcela y el que permite el salto de altura.
Sobre la plataforma inferior, se sitúan el garaje y la bodega (sin distribuir, aunque con todas las tomas previstas para situar un aseo y una cocina), y sobre éstos la cocina (con una terraza iluminada desde la cubierta con un lucernario), despensa y office, y las tres habitaciones de planta baja, que vierten sin embargo al sur, al jardín.
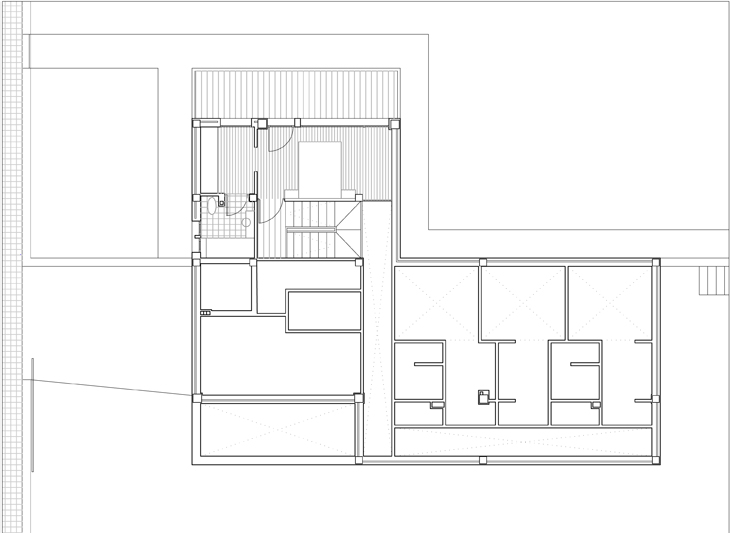
Sobre la plataforma superior, se sitúa el salón y sobre él la habitación principal con una terraza cubierta, que abre la habitación al sur y al este y la protege de la cercanía de los vecinos.
Todo esto da lugar a un edificio que se adapta de la mejor manera posible al terreno donde se asienta. La cubierta es casi una línea paralela al vial que da servicio a la parcela, para esconder el edificio, para integrarlo, para que no destaque en un conjunto de decenas de viviendas unifamiliares. Es una cubierta de pendiente 30% a un agua, en dirección a la pendiente del terreno. Es esta cubierta la que permite, con su inclinación, una segunda planta en la parte sur, donde se alojará la habitación principal, mirando al sur, mirando al este, mirando también a la entrada.
          
           
          
