Edificación
	GUARDERÍA EN ORDUÑA
	
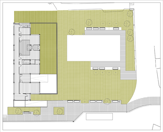
	En una parcela de cesión para equipamiento docente de un sector desarrollado en los años 80, el Ayuntamiento planteó la construcción de un pequeño edificio para guardería infantil. Siendo un emplazamiento discutido por los vecinos circundantes, se planteó desde un inicio la implantación con respeto y discreción en la parcela ajardinada. 
		  Un edificio que parece elevarse sobre el terreno, y cuya grama cromática exterior lo hace desaparecer entre los árboles que se mantienen, entre el seto de los jardines privados. Hacia el interior, la cubierta quebrada permite la entrada de luz para iluminar unos espacios claros, pintados de colores primarios. La distribución es clara, con un pasillo lateral ubicado hacia los jardines privados, al que vierten todas las dependencias en peine: una zona principal de uso variado, el acceso al espacio exterior de esparcimiento y las aulas para actividad divididas por edades.
		  Entre ambas se encuentra un espacio de descanso, iluminado y ventilado por una fractura en la cubierta, aquella que permite la entrada de luz al interior de un edificio con una crujía de un ancho marcado por la superficie máxima edificable y la forma de la parcela de cesión.
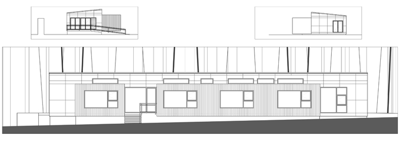
		  Las aulas, hacia el exterior, se muestran a pesar de su color neutro, amables, con grandes ventanas y recubrimiento de madera tratada con lasur gris. El resto del edificio se recubre con placas de hormigón polímero.
          
           // 
          
