Rehabilitación
	REFORMA INTERIOR DE VIVIENDA CENTRO DE MADRID
	
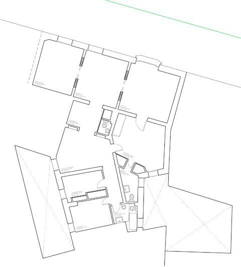
	Ubicada en un edificio protegido del distrito Centro de Madrid, de principios del siglo XX, la vivienda, antes de su renovación, constaba de tres salones interconectados con puertas correderas y ventanales a la calle principal. Era este un espacio de gran calidad, con importantes molduras en el techo, carpintería exterior original y suelo de tarima de madera con dibujos en espigas y diamantes.
El resto de la vivienda, que vertía a dos patios, había sido peor tratado por el paso del tiempo, con modificaciones recientes que le habían quitado parte de su valor. Era esta una zona, además, más oscura, y con los cuartos húmedos (baños y cocina) pequeños y en mal estado.
La intervención trata de sacar a la luz todo el potencial de los salones exteriores, limpiando molduras, cuidando la madera del suelo, eliminando decoraciones superfluas, manteniendo carpinterías pero mejorando sus prestaciones de aislamiento térmico y sonoro.
Y plantea una actuación completamente nueva en la zona interna, que ilumine esos espacios anteriormente angostos y oscuros. 
La habitación principal se abre al baño a través de un muro bajo, para agrandar éste, pero también para recibir más luz de su ventana. Ese muro bajo se reviste de madera de castaño, elemento, que junto con el mármol, se repite en otras zonas húmedas de la vivienda.
Como en el baño de invitados, en el que se forra el frontal de madera, donde se apoya un lavabo de mármol hecho a medida.
O en la cocina, donde, junto a unos muebles altos que se esconden en el paño del tabique, se coloca una isla de encimera de mármol y puertas de madera, apoyándose en los conductos preexistentes de ventilación del edificio. Esa isla se repite en altura, para esconder ese machón de los conductos, pero también para ubicar la caldera y campana.
En el resto de la vivienda se ejecuta un suelo de resina blanca, sin distinguir usos, e iluminando estancias. 
La entrada de la vivienda, que será la primera imagen que se llevará el visitante, es la mezcla de esas dos intervenciones sobre la vivienda. El respeto a los elementos de valor (ese techo moldurado que apareció al eliminar el falso techo previo y que se ha mantenido en sus colores e imperfecciones originales) que se une con una intervención radical de suelos, techos y paredes blancas, y puertas de paso y armarios invisibles.
En colaboración con: RÄL 167
Fotógrafo: Juan Baraja
          
          
          
